1일 동안 보지 않음
알림
뒤로
알림 설정
뒤로
더보기
게시물 알림
내 글 반응
내가 작성한 게시물이나 댓글에 다른 사람이 댓글이나 답글을 작성하면 알려줍니다.
공지사항
사이트에서 보내는 중요한 공지를 실시간으로 알려줍니다.
Alarm
마이페이지
로그아웃
홈
시공 회사
플랫폼 서비스
사업지원 서비스
디자인지원 서비스
일반 고객
시공 안심 지원 서비스
인테리어 보고 앱
프로젝트
문의하기
뉴스
닫기
홈
시공 회사
플랫폼 서비스
사업지원 서비스
디자인지원 서비스
일반 고객
시공 안심 지원 서비스
인테리어 보고 앱
프로젝트
문의하기
뉴스
HOBIEN
MENU
(주)씨투와이 나야 NAYA
HOBIEN
PROPOSAL
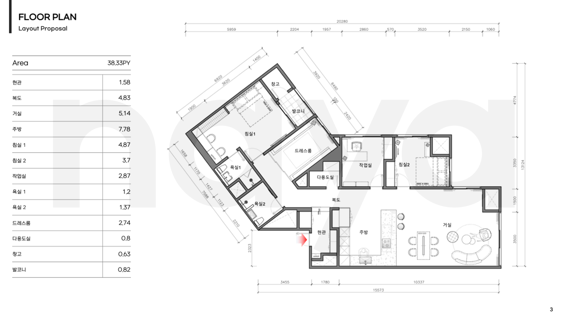
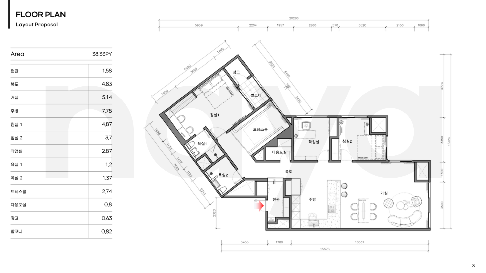
송도 A APT
PROPOSAL
임은동 K사 하늘채
PROJECT
임은동 K사 하늘채
INFORMATION
Year
2025
Countries
KOREA
Works
PROPOSAL
PROJECTS
송도 A APT
Year
2025
Countries
KOREA
Works
PROPOSAL
-