평균 수주 확률 93%

디자인 제안서

인테리어 시공사를 위한 수주 특화 지원 서비스

750+
420개사+
1,300개사+

진행한 프로젝트

총 협업 시공사

총 시공사 회원 수

이제 투시도만으로는

고객 설득이 어렵습니다

인스타만 봐도 인테리어 정보와 디자인이 넘쳐나는 요즘 고객들은 ‘더 자세히, 더 깊게’ 알고 싶어 합니다.

투시도는 일부 공간만 표현할 뿐, 고객은 공간 전체에 대한 컨설팅을 원합니다.

가장 합리적인 

디자인 파트너, 나야

그래서 나야는 전문 인력이 부족한 인테리어 

시공사를 위해 디자인 지원 서비스를 제공합니다. 

주거부터 상업까지 다양한 프로젝트 진행 경험을 

바탕으로, 귀사의 수주 경쟁력을 한층 

강화해드립니다.


전문 설계 지원

수주에 강한

검증된 1군 출신 설계팀


전략적 코디 지원

대형사급 전략

자재/스타일 코디


무료 쿠폰 제공

신규 파트너 첫 1회 무료 혜택

수주율 93%의 비밀

고객 맞춤 무드 제안

고객 상담 내용을 바탕으로 취향· 예산· 공간 목적에 맞춘 디자인 컨셉을 제시합니다.

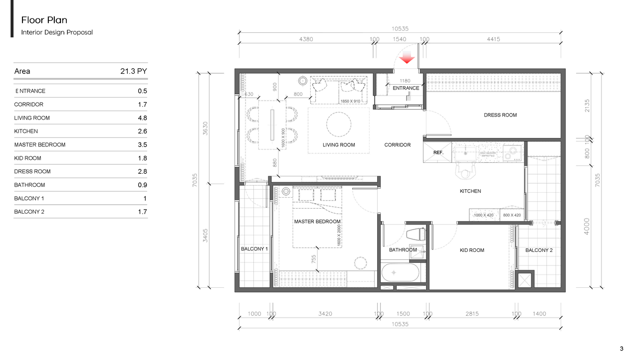
평면 기획

레이아웃/동선/가구 배치까지 고려한 평면 설계로 

공간 활용도를 높입니다.

3D 투시도 제공

완성된 공간을 미리 확인할 수 있는 3D 투시도를 

제공합니다.

마감재 스펙북 제공

투시도에 적용된 마감재 스펙북을 제공합니다.

완성된 모습을 고객이 직접 확인할 수 있습니다.

홈스타일링 제안

고객 개인 맞춤형 홈스타일링을 제공합니다.

고객의 감동은 긍정적인 첫인상으로 이어집니다.

mobile background

평균 수주 확률 93%

디자인 제안서

인테리어 시공사를 위한 수주 특화 디자인 지원 서비스

750+

진행한 프로젝트

420개사+

총 협업 시공사

1,300개사+

총 시공사 회원 수

이제 투시도만으로는

고객 설득이 어렵습니다.

인스타만 봐도 인테리어 정보와 디자인이 넘쳐나는 요즘 고객들은 

‘더 자세히, 더 깊게’ 알고 싶어 합니다.

투시도는 일부 공간만 표현할 뿐, 고객은 공간 전체에 대한 컨설팅을 원합니다.

가장 합리적인 

디자인 파트너, 나야

그래서 나야는 전문 인력이 부족한 인테리어 시공사를 위해 디자인 지원 서비스를 제공합니다.

주거부터 상업까지 다양한 프로젝트 진행 경험을 바탕으로, 귀사의 수주 경쟁력을 한층 강화해드립니다.


전문 설계 지원

수주에 강한

검증된 1군 출신 설계팀


전략적 코디 지원

대형사급 전략 

자재/스타일 코디


무료 쿠폰 제공

신규 파트너

첫 1회 무료 혜택


수주율 93%의 비밀

나야 파트너 시공사는

디자인 제안서 무료

디자인 부담 없이 수주 경쟁력을 높이세요!
나야가 200만원 상당의 고퀄리티 제안서를
 매월 무료로 지원해드립니다.

나야 디자인 제안서를 처음 신청하신다면?


파트너 시공사의 수주 성공을 응원하는 마음으로, 디자인 제안서 첫 1회 무료 쿠폰을 드립니다.

파트너 시공사 무료 혜택 받는 방법


매월 누적 자재 구매액 달성 시


무료 쿠폰을 추가 제공해드립니다.

*앱 발주 파트너에 한해 쿠폰 제공

디자인 제안 범위 안내


주거공간 40평 미만 기준

상업공간 및 면적/제공 범위에 따라 추가 비용 발생 가능


투시도 기본 2컷 / 디자인 부분 수정 2회 무료


디자인에 사용된 마감 자재 견적 제공

나야 최저가 견적서 제공 및 간편 발주를 위한 앱 세팅

주거부터

상업 공간까지

시중가 대비 합리적인 가격에 제공되며, 조건 충족 시 부담 없이 전액 환급 받으실 수 있습니다.

무드 제안

고객 상담 내용을 바탕으로 취향·예산·공간 목적에 

맞춘 디자인 컨셉을 제안합니다.

평면기획

레이아웃/동선/가구 배치까지 고려한 평면 설계로 

공간 활용도를 높입니다.

3D투시도

완성된 공간을 미리 확인할 수 있는 

3D투시도를 제공합니다.

마감재 스펙북 제공

투시도에 적용된 마감재 스펙북을 제공합니다.

완성된 모습을 고객이 직접 확인할 수 있습니다.


홈스타일링 제안

고객 개인 맞춤형 홈스타일링을 제공합니다.

고객의 감동은 긍정적인 첫인상으로 이어집니다.


상담 및 신청방법

아래 문의하기 또는 나야 카톡채널로 

도면(평면도·참고 이미지 등)과 간단한 내용을 

함께 남겨주시면, 빠르고 정확하게 

답변 드리겠습니다.

T. 1644-4908   |   E. info@nayac2y.com

나야 파트너 시공사는

디자인 제안서 무료!

디자인 부담 없이 수주 경쟁력을 높이세요!
나야가 200만원 상당의 고퀄리티 제안서를 매월 무료로 지원해드립니다.

나야 디자인 제안서를 처음 신청하신다면?
파트너 시공사의 수주 성공을 응원하는 마음으로,
디자인 제안서 첫 1회 무료 쿠폰을 드립니다.
파트너 시공사 무료 혜택받는 방법
+
매월 누적 자재 구매액 달성 시
무료 쿠폰을 추가 제공해드립니다.
*앱 발주 파트너에 한해 쿠폰 제공
디자인 제안 범위 안내
+
주거공간 40평 미만 기준
상업공간 및 면적/제공 범위에 따라 추가 비용 발생 가능
투시도 기본 2컷 / 디자인 부분 수정 2회 무료
디자인에 사용된 마감 자재 견적 제공
나야 최저가 견적서 제공 및 간편 발주를 위한 앱 세팅

나야의

전문 지원팀을
소개합니다





👉

디자인 팀

전문적 고퀄리티 디자인 제안서를 

제작해 영업의 신뢰도를 높이고, 
수주 확률을 크게 향상 시킵니다.





코디 팀

제안서와 함께 예산과 디자인에 맞는 마감재와 샘플을 제공하여, 수주 확률은 높이고 현장 실행은 낮춥니다.




상품전략 팀

수주된 현장의 실행 절감을 연구하고, 합리적인 대안재 제안으로 현장의 수익성을 개선합니다.





상담 및 신청방법

아래 문의하기 또는 나야 카톡채널로 도면(평면도·참고 이미지 등)과 간단한 내용을 함께 남겨주시면, 

빠르고 정확하게 답변 드리겠습니다.



T. 1644-4908   |   E. info@nayac2y.com

자주 묻는 질문

A. 고객 영업에 고퀄리티 디자인 제안서는 이제 필수가 되었으나, 고정비 부담으로 디자인 인력 부족하거나 업무 과부하인 경우, 나야는 부담 없이 이용 가능한 디자인 지원 서비스를 제공합니다.

A. 아닙니다. 사장님의 기존 거래 단가와 동일하거나, 오히려 더 저렴하게 공급해드리도록 사전에 견적서를 보내드립니다.

A. 아닙니다. 디자인 제공받은 시공 현장과 관계없이, 나야에서 월 누적 구매 금액이 일정 기준을 넘으면 환급해드립니다.

A. 고객 상담 내역을 토대로 고객 요구와 예산에 맞춘 무드 제안, 평면 기획, 3D 투시도(2컷), 마감재 코디, 홈스타일링을 제공드립니다.

A. 국내 1군 인테리어사 출신의 나야 설계팀이 직접 제작하며, 주거부터 상업공간까지 검증된 실력으로 높은 퀄리티를 제공합니다.